
Tobacco Headquarters
Opulent sophistication.
Brief
Location :
Designing the headquarters of the the cigarettes brand "Tobacco" through renovation of an old mansion, blending modern elements with the building's classic charm by identifying key architectural features that must be preserved such as the double-height ceilings and ornate ceiling cornices.
Mansoura, Egypt
Area :
1530 m² / 16468.78 sq.ft
Date :
May 2022
Team :
Mohamed Hamdy | Co-founder and Lead Architect.
Samar Adham | Design Architect




Challenge
Assessment of the mansion's current state, identifying key architectural features that must be preserved, such as the double-height ceilings and ornate ceiling cornices.
The design team then creates a plan that integrates contemporary design while respecting these historical elements.
Incorporating modern office functionalities such as ergonomic workstations, advanced technological infrastructure, and collaborative meeting areas ensures that the space meets the demands of a contemporary workplace.
The juxtaposition of old and new elements creates a unique and inspiring environment that reflects the brand's commitment to innovation while honoring its heritage.
Throughout the process, careful attention is paid to maintaining the structural integrity of the mansion ensuring a seamless blend of classic elegance and modern sophistication
Concept






Layout
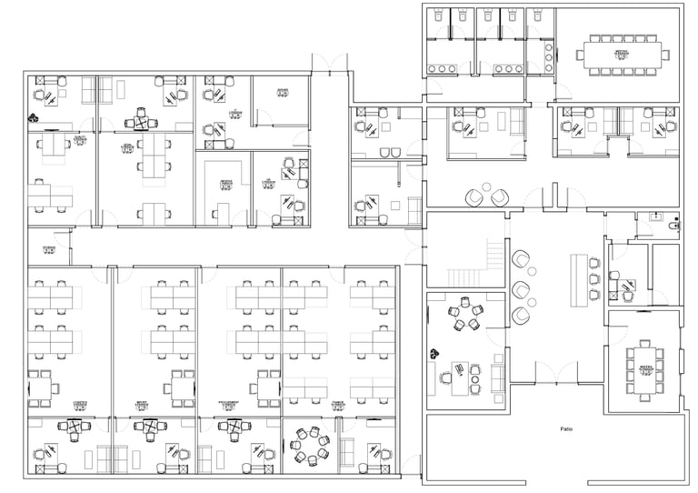
The ground floor plan of the Tobacco headquarters showcases a well-organized and functional layout designed to facilitate a productive work environment where the entrance leads into a spacious reception area flanked by comfortable seating for visitors.
Adjacent to this a large open office space features multiple workstations arranged to promote collaboration among teams along with private offices and meeting rooms strategically placed along the perimeter providing quiet areas for focused work and discussions.
The plan also includes dedicated spaces for various departments such as finance, procurement, and design, each with its own enclosed office and shared workspaces while nearby restrooms ensure convenience for employees and guests.
A large, inviting patio at the rear of the building offers an outdoor area for relaxation enhancing the overall work atmosphere. The design effectively balances open collaborative spaces with private areas, ensuring both teamwork and individual productivity are well-supported.






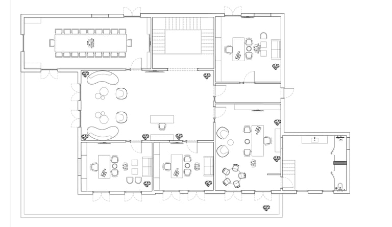
The first floor features a central lounge area with comfortable seating for informal meetings or relaxation. Adjacent to this is a spacious executive office with a meeting table, private seating area, and a large desk. Surrounding the lounge are smaller offices and meeting rooms, each furnished to meet departmental needs. The floor also includes a large, formal conference room for significant meetings and presentations, balancing open collaborative areas with private workspaces to support a dynamic working environment.
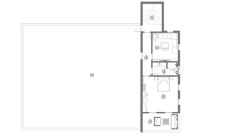
The roof floor of the Tobacco headquarters includes two spacious bedrooms, each with its own walk-in closet and luxurious bathroom. Both bedrooms are designed with a TV wall and unit, alongside a dressing table with a pouf. Additionally, the floor features a cozy seating area, ideal for relaxation and leisure, ensuring a blend of comfort and functionality in a sophisticated setting. The client required the presence of the guest bedrooms since the headquarter lies in a different governorate from the main office.
Implementation
Modern materials and finishes like sleek glass partitions, polished concrete floors, and state-of-the-art lighting are introduced to contrast with and highlight the mansion's traditional features.
The double-height ceilings are leveraged to create airy open spaces that foster a sense of grandeur and spaciousness while the intricate ceiling cornices are restored and emphasized as focal points in the design.














Featuring the implementation process with the potential renders
Site Parallels








Site Pictures
Featuring the implementation process.


