
La Casa De Gelato
Luxurious Grandeur.
Brief
Location :
Exuding a bold, extravagant, and vibrant atmosphere perfect for an upscale, luxury ice cream parlor with the aim to evoke a sense of indulgence and celebration where the experience of enjoying a dessert becomes an upscale affair.
Bochum, GERMANY
Area :
156 m² / 1679.17 sq.ft
Date :
April 2024
Team :
Mohamed Hamdy | Co-founder and Lead Architect.
Noran Essam | Design Architect
Samar Adham | Design Architect




Challenge
Balancing the high-end aesthetic with the practical needs of a busy ice cream shop while maintaining seamless flow between customer service areas and workstations to avoid congestion
Creating a design that emphasizes both functionality and customer comfort by maintaining variety of spacious seating areas and arrangements for different group sizes creating flexibility in maneuvers .
Creating a dramatic and glamorous aesthetic ambiance that would attract those seeking a lavish and unique atmosphere, transforming a simple treat into a sophisticated moment of luxury.
Concept


Layout
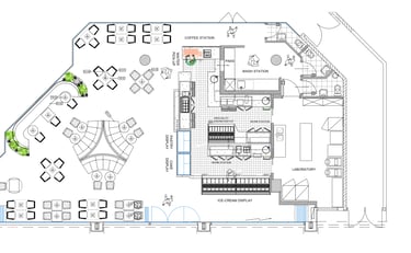
This ice cream shop layout features a well-organized design that emphasizes both functionality and customer comfort. The seating area is spacious and varied, with a mix of square and circular tables for different group sizes, creating flexibility in seating arrangements. Curved banquettes and booths add a dynamic, flowing shape to the space. The central seating arrangement is defined by a sculptural seating area that acts as a focal point, enhancing the aesthetic appeal.
The display zones are strategically placed near the entrance for high visibility, including a prominent ice cream display, along with pastry and cake showcases, inviting customers to explore. A coffee station and waiter pick-up area provide additional offerings, enhancing the customer experience. In addition to the back-of-house area includes multiple workstations, a wash station, and a laboratory, optimizing operational efficiency and maintaining a smooth workflow.


Implementation
The striking combination of deep, rich colors like black and plum paired with opulent metallic accents in gold creates a dramatic and glamorous aesthetic.
The polished, reflective surfaces on the floor and counters add a sense of high-end sophistication, while the illuminated spiral staircase and statement planting bring an unexpected, whimsical touch, making the space feel both luxurious and playful.








