
Greens | 2048
Opulent sophistication.
Brief
Location :
Designing a spacious three-story villa that maximizes the number of bedrooms while incorporating wide openings and expansive, functional landscape areas.
The design will focus on creating a luxurious and comfortable living environment with ample natural light, generous indoor-outdoor flow, and extensive landscaped spaces for leisure and recreation.
Cairo, Egypt
Area :
1070 m² / 11517.38 sq.ft
Date :
July 2024
Team :
Mohamed Hamdy | Co-founder and Lead Architect.
Samar Adham | Design Architect
Noran Essam | Design Architect






Challenge
The challenge this project faced was reconstructing the layout to fit the maximum possible capacity of bedrooms since the villa is designed to hold a large number of family members each of which shall have separate dressing rooms and bathrooms.
Optimizing timeless elegance and modern comfort through classical architectural elements like columns, pilasters, and elaborate moldings.
The design aims for a harmonious balance of luxury and functionality. Rich materials such as marble, stone, and polished woods will enrich spaces with a palette of neutrals and deep accents.
Concept






Layout
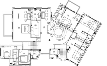
The ground floor of this villa combines grandeur with practicality; starting with an impressive foyer leading to a spacious reception hall and a cozy living space.
Adjacent is a formal dining area complemented by two powder rooms for convenience alongside with a large kitchen is equipped for gourmet cooking.
Finally, a private office accessed separately from the outside ensures quiet work while overlooking the outdoor landscape which holds a sprawling pool with seating areas and ample green space that invites outdoor relaxation and activities creating a perfect blend of elegance and comfort.








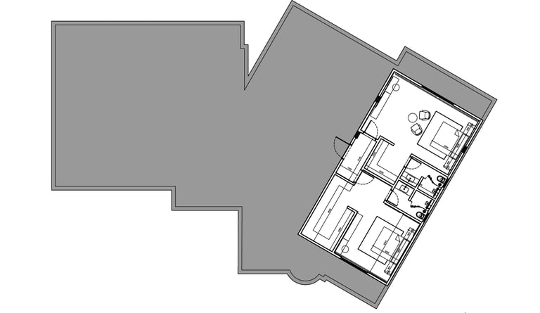
The first floor plan includes three main large bedrooms, each with ample space and bathroom access. The master suite is particularly luxurious, with a large sleeping area, en-suite bathroom with dual sinks and a freestanding tub, and a separate living space. Moreover, it holds two generously sized guest bedrooms each with its own bathroom and dressing room providing luxurious accommodations for visitors.
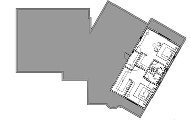
The roof floor includes two spacious bedrooms, each featuring its own walk-in closet and luxurious bathroom with high-end fixtures. Both bedrooms are equipped with a TV wall and unit, as well as a dressing table complete with a pouf, providing ample space for relaxation and personal care. The design ensures comfort and functionality, with elegant touches that enhance the overall luxury of the space.






Implementation
The implementation of the design concept is highlighted through the use of materials and elements such as marble, wood, brass, and mirrors, which collectively create a luxurious and sophisticated look.
Marble surfaces add elegance and grandeur, while rich wood tones bring warmth and depth to the space. Brass accents provide a touch of opulence and refinement, and strategically placed mirrors enhance the sense of space and light, amplifying the overall luxurious ambiance.
This thoughtful selection and combination of materials and elements result in a cohesive and stunning design.
























