
GRDS Office
Minimalistic Identity
Brief
Location :
Designing our office space in Cairo to promote efficiency and tranquility by stripping away unnecessary elements and emphasizing the essentials to create a workspace that is both aesthetically pleasing and highly functional.
This approach not only enhances the visual appeal but also fosters a calm and focused atmosphere, ideal for a modern work setting.
Cairo, EGYPT
Area :
145 m² / 1560.77 sq.ft
Date :
December 2023
Team :
Mohamed Hamdy | Co-founder and Lead Architect.
Samar Adham | Design Architect




Challenge
Maximizing working areas and desks within an office space involves a strategic approach to layout and furniture selection.
Thoughtful space planning combined with ergonomic and adaptable furnishings to enhance productivity and create a versatile office environment that meets the diverse needs of its occupants.
The office layout features simple sleek furniture with a focus on functionality where the desks are designed with minimalistic aesthetics offering clean surfaces that help maintain an organized workspace.
The chairs are ergonomic yet stylish ensuring comfort without compromising on design. Hanging pendant lights provide focused illumination complementing the natural light and ensuring a well-lit environment conducive to productivity.
Concept




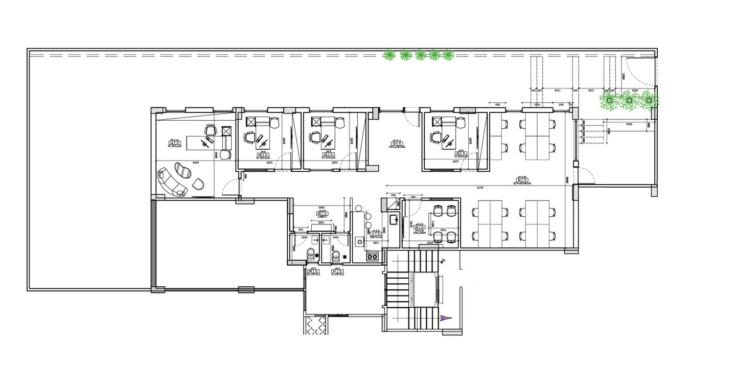
Layout
This office plan features a well-organized layout to boost productivity and collaboration. It includes individual offices along one side, a central open-plan workspace, and several meeting rooms. The individual offices provide private workspaces while the open-plan area encourages teamwork.
Meeting rooms of various sizes are equipped for different purposes. Essential amenities like restrooms, a pantry, and storage are conveniently located. Greenery and an outdoor area enhance the environment. Overall, the plan balances private and collaborative spaces, creating an efficient and versatile work environment.




Implementation
The interior style of this office exemplifies minimalism through its clean lines, neutral color palette, and functional furnishings. The space is designed to maximize natural light, with large windows that allow for ample daylight, enhancing the sense of openness.
The use of white walls and light gray flooring creates a serene and uncluttered environment, while the black window frames and light fixtures add a touch of modern contrast.












